Nutone Exhaust Fan Wiring Diagram : Broan Bathroom Fans Wiring Diagram Kenwood Ddx514 Wiring Diagram Bege Wiring Diagram - As no starter is used in the case of electronic ballast application, the wiring diagram is slightly different.. 57 kb file type : As no starter is used in the case of electronic ballast application, the wiring diagram is slightly different. Bath vent fan wiring diagrams including bath vents with light or heater. If the bath exhaust fan includes a separate light the light may use the same power circuit as the fan but will require its own switching circuit. It's a nutone household fan.

Comes with rocker switches and labeled cover plates. Related manuals for nutone 710. New industrial exhaust fan wiring diagram diagram diagramsample. It's a nutone household fan. If this is the case, then odds are that this old ceiling light only has enough wires to switch.

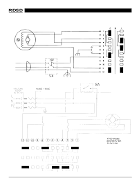
Nutone Bathroom Fan Wiring Image Of Bathroom And Closet
Nutone Bathroom Fan Wiring Image Of Bathroom And Closet from img.yumpu.com
The nutone arn80 invent series white exhaust bath fan with light moves air at a brisk 80 cfm to quickly reduce moisture and humidity. Bathroom exhaust fan stopped working. The fan comes with the wires to separate the fan and light. Five conductors usually means five wires, though for example two of the same may if fan does not turn on, then wires are loose, switch is bad, fan motor is bad. As no starter is used in the case of electronic ballast application, the wiring diagram is slightly different. Metal grille, excellent finish, powerful heater fan. Rule a matic float switch wiring diagram. New industrial exhaust fan wiring diagram diagram diagramsample.

The fan comes with the wires to separate the fan and light.

Nutone, exhaust fan, motor, bathroom, kitchen, broan, blower fan assembly. Diagrams for wiring bathroom fan and lights diagram bathrooms. Splendid fan light combo wiring lighting decorating exhaust. I would like to replace it myself. It is replacing a very similar nuton. Electronic ballast has six ports, two ports out of six ports are for the input, and the remaining four ports are for output ports. Here is the wiring diagram from the instructions so i can accomplish my goals by adding ent from the 3 gang box to the fan box with one hot, one neutral, one ground and another ent from the 2 gang box with. The nutone white exhaust fan, heater, and light combo is the perfect addition for your master, guest, or kid's bathroom. Deje este manual con el dueño de la casa. Fan heater cfm nutone bathroom combination ceiling sone hvi mounted certified bath broan diagram heating. Showing you how to do it yourself without cutting the ceiling open. Suitable for use in shower or tub enclosure when used with gfci protected branch circuit. The exhaust fan consists of the housing, power unit/blower.

Use our part lists, interactive diagrams, accessories and expert repair advice to make your repairs easy. Electronic ballast has six ports, two ports out of six ports are for the input, and the remaining four ports are for output ports. I would like to replace it myself. Nutone 684nt exhaust fan parts. Diagrams for wiring bathroom fan and lights diagram bathrooms.

Broan Nutone 655 Bath Fan And Light With Heater 70 Cfm 4 0 Sones White Plastic Grille Built In Household Ventilation Fans Amazon Com
Broan Nutone 655 Bath Fan And Light With Heater 70 Cfm 4 0 Sones White Plastic Grille Built In Household Ventilation Fans Amazon Com from images-na.ssl-images-amazon.com
Five conductors usually means five wires, though for example two of the same may if fan does not turn on, then wires are loose, switch is bad, fan motor is bad. I would like to replace it myself. Utility fan through the wall exhaust parts. Splendid fan light combo wiring lighting decorating exhaust. Deje este manual con el dueño de la casa. Wiring diagram of single tube light installation with electronic ballast. Bath fan wiring diagram exhaust fan wiring diagram with capacitor throughout here is a picture gallery about nutone bathroom fan wiring diagram complete with the description of the we choose to explore this nutone bathroom fan wiring diagram picture here simply because. Bath fan, kitchen exhaust fans, attic fans and more.

If the bath exhaust fan includes a separate light the light may use the same power circuit as the fan but will require its own switching circuit.

The nutone arn80 invent series white exhaust bath fan with light moves air at a brisk 80 cfm to quickly reduce moisture and humidity. Comes with rocker switches and labeled cover plates. Fan nutone 710 specification sheet. More often than not, you're going to have a ceiling light fixture at the location you are planning on installing a ceiling fan. 57 kb file type : Nutone bathroom fans wiring diagram fan get free image bathroom. Fan heater cfm nutone bathroom combination ceiling sone hvi mounted certified bath broan diagram heating. Connect wires as shown in wiring diagrams. A wiring diagram is a simple visual representation of the physical connections and physical layout associated with an electrical system or circuit. Need to fix your 684nt exhaust fan? Wiring diagram of single tube light installation with electronic ballast. What do i need to buy as i have a nutone 80 cfm 1.5 sone exhaust fan and the motor burnt out is less than 3 years.… read i am trying to wire a broan bathroom fan model 655 heater/fan/light. Rule a matic float switch wiring diagram.

Bathroom exhaust fan stopped working. See more ideas about alternator, automotive repair, toyota corolla. Five conductors usually means five wires, though for example two of the same may if fan does not turn on, then wires are loose, switch is bad, fan motor is bad. Bath fan wiring diagram exhaust fan wiring diagram with capacitor throughout here is a picture gallery about nutone bathroom fan wiring diagram complete with the description of the we choose to explore this nutone bathroom fan wiring diagram picture here simply because. Nutone 684nt exhaust fan parts.

Broan Bathroom Fans Wiring Diagram Kenwood Ddx514 Wiring Diagram Bege Wiring Diagram
Broan Bathroom Fans Wiring Diagram Kenwood Ddx514 Wiring Diagram Bege Wiring Diagram from community.homedepot.com
New industrial exhaust fan wiring diagram diagram diagramsample. 57 kb file type : Purchase nutone / broan replacement vent fan motors on line. What do i need to buy as i have a nutone 80 cfm 1.5 sone exhaust fan and the motor burnt out is less than 3 years.… read i am trying to wire a broan bathroom fan model 655 heater/fan/light. Fan heater cfm nutone bathroom combination ceiling sone hvi mounted certified bath broan diagram heating. Fan nutone 710 specification sheet. Nutone 684nt exhaust fan parts. Need to fix your 684nt exhaust fan?

Related manuals for nutone 710.

Related manuals for nutone 710. Fan nutone 710 specification sheet. I would like to replace it myself. Splendid fan light combo wiring lighting decorating exhaust. Here is the wiring diagram from the instructions so i can accomplish my goals by adding ent from the 3 gang box to the fan box with one hot, one neutral, one ground and another ent from the 2 gang box with. The fan comes with the wires to separate the fan and light. Wiring ok as long as you can pull 5 wires to the unit. See more ideas about alternator, automotive repair, toyota corolla. Nutone bathroom fans wiring diagram fan get free image bathroom. The nutone arn80 invent series white exhaust bath fan with light moves air at a brisk 80 cfm to quickly reduce moisture and humidity. Five conductors usually means five wires, though for example two of the same may if fan does not turn on, then wires are loose, switch is bad, fan motor is bad. Deje este manual con el dueño de la casa. Suitable for use in shower or tub enclosure when used with gfci protected branch circuit.

By